采购蚁——采购更便宜

登录 / 注册

关于我们

找货源

新闻资讯

软件下载

在线发布

产品介绍

购物车

首页


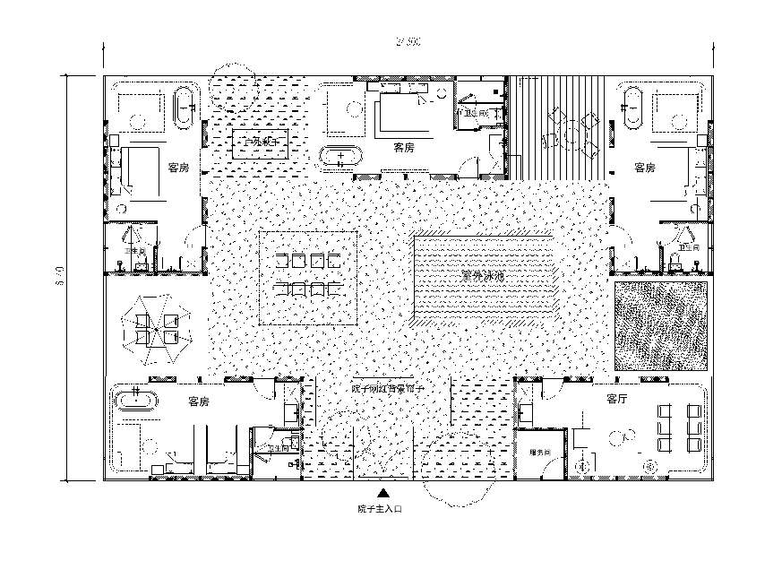
北京怀柔项目一拖四组合院子,院子尺寸24.3m*16.14m,建筑面积166㎡。
价      格:¥699000.0
商品产地:天津市
商品标签: 民宿酒店院子  宅基地院子  高品质活动房 
规格价格:
一套起批,拎包入住 699000元/个 1起批
购买数量:
商品参数:

产地:天津|材质:全钢结构|性能(功能):民宿酒店,准四星级标准|加工定制:可根据业主需求定制

商品介绍:

项目介绍: 1、项目位于北京怀柔区九渡河镇,紧邻黄花城水长城、慕田峪长城、红螺寺等北京著名景点,距离怀柔区约10公里,离首都机场约20公里,距离北京中心约40公里。地块相对独立,离周边居住区有点距离,环境优美,依山傍水,海棠花开,风景秀丽,是块不可多得的风水宝地。 2、整体规划一拖三独立院子3套,一拖四独立院子5套,一拖五独立院子2套,一层建筑,原野茅屋造型,整体配套有餐厅、厨房,咖啡厅,红酒吧、共享客厅、室外25米泳池及满足一次30人一起就餐室外大餐桌平台等。 投资回报举例: 投资一套一拖三院子,总投资69.9万(1间客厅+4间卧室+院子,总建筑面积166平方米,整体院子面积为392.20平方米,含租金,不含泳池),全托代运营模式3 或3年以内回本,长达二十年收益!闲暇自住,托管民宿赚钱两不误。专业化的全链解决建设方案,专业化的民宿酒店管理团队负责运营,自有品牌全套OTA稳定客源,让您拥有性价比山水别墅和稳定第二笔收入。

  

相关推荐 采购蚁平台